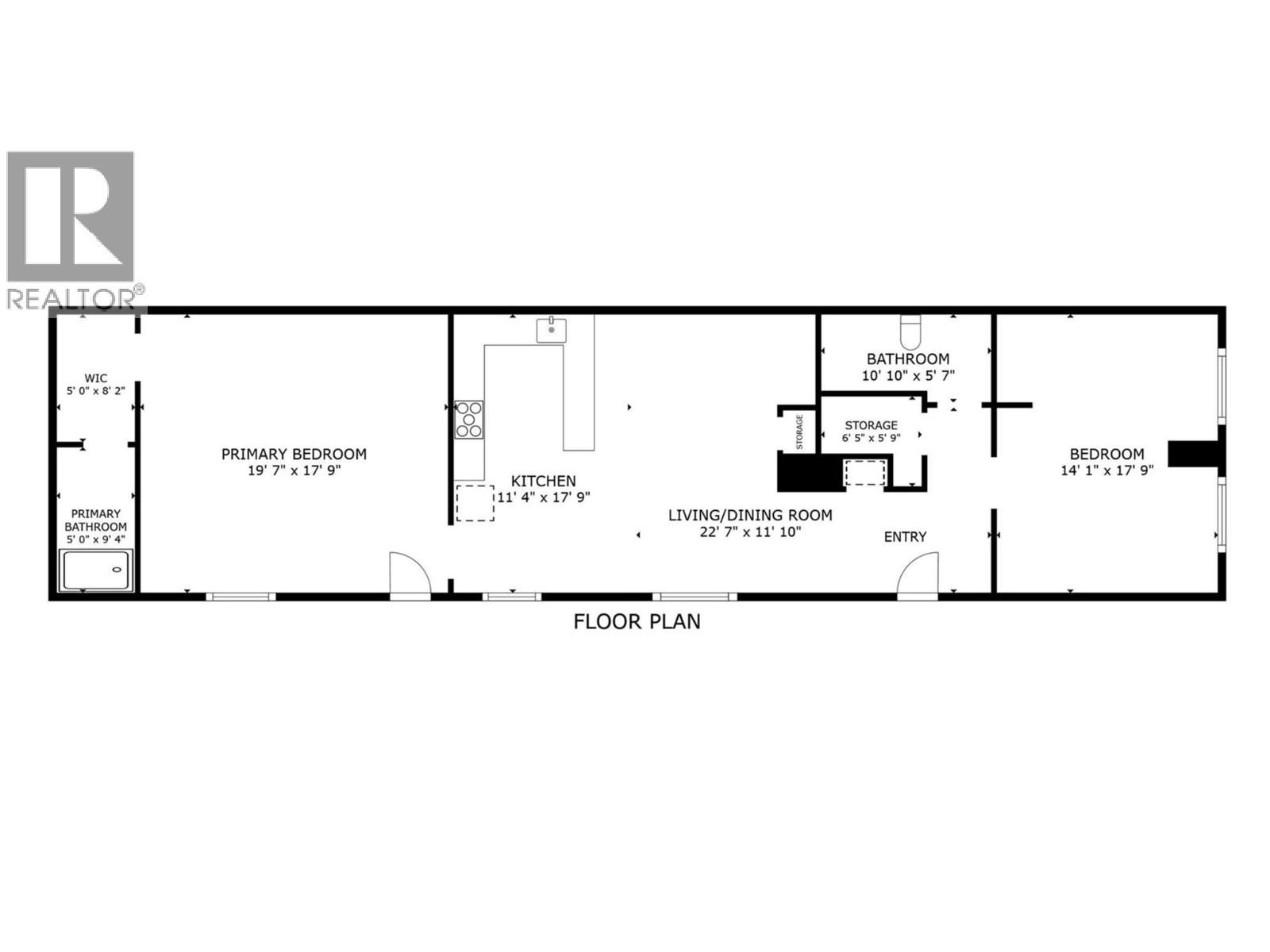
Welcome to 4811 Crescentwood Dr., an affordable 3-bedroom, 2-bathroom family home with a 2 bedroom suite on a large, nearly 1/4 acre lot! The home features a new roof and new flooring. With a park, an outdoor skating rink, and an elementary school nearby, this is the perfect home for your family. The semi-finished walk-out basement is ideal for an in-law suite or can be finished to your own taste to create a rental suite to help with the mortgage! Don't wait—call your REALTOR to book a showing today. (id:4069)
Address
4811 CRESCENTWOOD Drive
List Price
$549,900
Property Type
Single Family
Type of Dwelling
Single Family
Style of Home
Bungalow
Transaction Type
Sale
Area
British Columbia
Sub-Area
Edgewater
Bedrooms
5
Bathrooms
4
Floor Area
1,413 Sq. Ft.
Lot Size
0.24 Sq. Ft.
Year Built
2014
MLS® Number
10363373
Listing Brokerage
RE/MAX Invermere
Postal Code
V0A1E0




































